钢架结构楼板搭建标准是确保钢结构楼板施工安全的重要规范,它规定了钢架结构的设计和施工方法。这些标准包括对钢材、焊接工艺、安装过程和质量检验的要求,旨在提高建筑的安全性能和使用寿命。在施工过程中,必须遵循设计要求和相关法规,使用合格的材料,并采取适当的防护措施来保护工人的安全。还需要定期进行维护和检查,以确保结构的长期稳定和可靠性。
钢架结构楼板搭建标准
钢结构搭建概述
钢结构搭建是指利用钢材进行建筑结构的设计、制造和安装的过程。钢结构具有强度高、自重轻、构造严谨、安装方便、环保无污染等优点。钢结构搭建需要专业的设计、制造和安装团队,遵循相关的规范和标准。
钢结构楼板搭建的具体标准
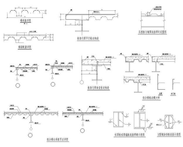
材料选择
钢结构楼板的搭建首先需要选择合适的材料。根据搜索结果,楼承板通常采用冷轧钢板(钢卷)制成,钢板厚度的常用规格为:0.75mm、0.8mm、0.90mm、1.0mm、1.20mm、1.50mm。钢板厚度大于1.2mm时,其成型较困难,更主要是栓钉无法焊透压型钢板与钢梁可靠连接,所以楼承板最大厚度不应大于1.5mm,用作组合楼板时,规定钢板厚度≥0.75mm。
结构设计
钢结构楼板的结构设计需要考虑到快速施工的要求,能够在短时间内提供坚定的作业平台,并可采用多个楼层铺设压型钢板,分层浇筑混凝土板的流水施工。在使用阶段楼承板作为混凝土楼板的受拉钢筋,也提高了楼板的性能。
施工安全
在钢结构楼板的搭建过程中,安全是最重要的考虑因素。需要进行全面的安全检查,确保设备、材料、人员等方面符合安全要求。对于特殊和复杂的钢结构搭建项目,需要制定专门的安全施工方案和应急预案。施工现场应设置明显的安全警示标志,提醒工人注意安全。定期对施工机械进行检查和维护,确保其正常运转和安全使用。施工现场应设置安全网、防护栏杆等安全防护设施,防止工人坠落或受伤。
质量控制
钢结构楼板的搭建过程中,质量控制也是非常关键的一环。需要对采购的材料进行质量检查和验收,确保符合相关标准。对施工队伍进行安全培训和技术交底,提高安全意识和施工技能。审核施工队伍资质,确保具备钢结构搭建施工能力。搭建过程中应定期检查,确保各项安全措施得到有效执行。针对辨识出的危险源进行风险评估,确定风险等级并制定相应的预防措施。定期对危险源进行复查,及时更新预防措施,确保施工现场安全。
结论
综上所述,钢架结构楼板的搭建需要遵循一系列的标准和规范,从材料选择、结构设计、施工安全到质量控制,每一个环节都至关重要。只有严格按照这些标准进行操作,才能确保钢结构楼板的安全、质量和效率。

钢结构楼板施工安全规范
钢结构楼板质量控制要点
钢结构楼板设计快速施工方法
钢结构楼板材料选择指南



