钢结构车棚施工组织方案旨在确保工程的顺利进行。该方案包含详细的施工流程,从场地准备到钢结构安装、屋面及支撑系统的搭建,再到内部装修和设备安装。对可能出现的风险进行了分析,并提出了相应的预防措施。还强调了质量控制的重要性,包括材料验收、施工过程监控以及成品检验等环节。方案还包括了安全管理和环境保护措施,确保施工过程中的人员安全和环境友好。
钢结构车棚标准图集
钢结构车棚作为一种常见的建筑结构,其设计和建造需要遵循一定的标准和规范。以下是关于钢结构车棚标准图集的相关信息。
国家标准图集
在国家标准图集中,有关于钢结构车棚的设计和施工的标准。例如,国标图集标准图07SG528-1《钢雨篷(一)》提供了相关的指导和参考。这些图集通常包含了详细的构造细节、材料规格、施工要求等内容,旨在确保钢结构车棚的安全性和功能性。
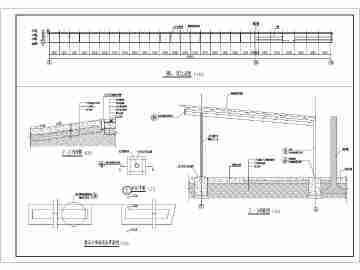
设计和施工图纸
钢结构车棚的设计和施工图纸也是重要的参考资料。这些图纸通常包括建筑平面图、剖面图、屋顶平面图、基础平面图等,详细展示了车棚的结构布局和关键节点的构造。通过这些图纸,设计师和工程师可以更好地理解和实施钢结构车棚的建设。
车棚材料和特性
了解车棚所使用的材料及其特性对于设计和选择合适的车棚类型至关重要。例如,膜结构车棚的篷布材质是膜结构,具有强度高、耐久性好、防火难燃、自洁性好等特点,使用寿命一般为15-30年。这些特性使得膜结构车棚不仅能够提供有效的遮阳挡雨功能,还具有较高的美学价值和经济性。
维护和保养
膜结构车棚的维护和保养也是确保其长期有效运行的关键。例如,在潮湿状态下,膜结构车棚可能会很滑,因此需要采取相应的安全措施,如布置安全网等。此外,定期检查和清理膜面,保持排水系统的畅通,以及在雪荷载较大的地区采取融雪、排雪应急措施,都是必要的维护工作。
综上所述,钢结构车棚标准图集提供了设计和施工的指导,而具体的材料选择、设计图纸、维护保养等方面的知识则有助于实现车棚的最佳性能和长久使用。在选择和设计钢结构车棚时,应综合考虑这些因素,以确保车棚既安全可靠,又经济美观。




钢结构车棚设计要点钢结构车棚施工流程膜结构车棚维护技巧钢结构车棚安全性评估

