根据住房和城乡建设部发布的《关于印发的通知》和《关于同意局部修订调整为全面修订的函》,包钢加固设计规范要求主要包括对外包型钢构架的表面防护,以及在采用结构胶粘合混凝土构件与型钢构架时,应符合现行国家标准《钢结构设计规范》GB 50017及《钢结构工程施工质量验收规范》GB 50205的规定。当工程要求不使用结构胶粘剂时,宜选用无粘结外包型钢加固法,也称干式外包钢加固法。,,包钢加固设计规范要求包括对外包型钢构架的表面防护,以及在采用结构胶粘合混凝土构件与型钢构架时,应符合现行国家标准《钢结构设计规范》GB 50017及《钢结构工程施工质量验收规范》GB 50205的规定。当工程要求不使用结构胶粘剂时,宜选用无粘结外包型钢加固法,也称干式外包钢加固法。
粘钢加固图集表示方式
粘钢加固图集是建筑结构加固工程中非常重要的参考资料,它详细展示了如何通过粘钢加固方法提高结构的承载能力和刚度。以下是粘钢加固图集的一些常见表示方式:
1.加固部分、新建部分和拆除部分的区分
- 加固部分:图集中会明确标注需要加固的构件位置和范围。
 - 新建部分:新增加的结构部分也会在图中清晰标明。
 - 拆除部分:需要拆除的部分同样会有明确标识。
 
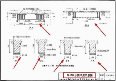
例如,07SG111图集将加固部分、新建部分和拆除部分进行了详细区分,以便设计和施工人员能够准确理解加固方案.
2.节点详图
- 混凝土柱加固:图集中会提供详细的混凝土柱加固节点详图,包括钢板的尺寸、位置和固定方式。
 - 混凝土梁加固:梁的加固节点详图会显示钢板的粘贴位置、长度和厚度,以及胶水的涂抹方式。
 - 板加固:板的加固节点详图会展示钢板的粘贴位置和固定方式。
 - 剪力墙加固:剪力墙的加固节点详图会详细说明钢板的粘贴位置和固定方法。
 
07SG111-1图集提供了多种节点详图,如混凝土柱加固施工图表示方法、混凝土梁加固施工图表示方法等.
3.平面注写方式
- 平面注写:在平面图中标注加固构件的位置和尺寸,以及钢板的粘贴范围。
 - 截面注写:在截面图中标注钢板的厚度、位置和固定方式。
 
例如,07SG111-2图集提供了剪力墙加固平面图(平面注写方式)和二层结构梁加固平面图(平面、截面注写方式).
4.列表注写方式
- 列表注写:在表格中详细列出加固构件的各项参数,如钢板的尺寸、位置、胶水的种类和用量等。
 
07SG111-2图集提供了加大截面加固柱列表注写方法示例和砌体墙柱列表注写示例.
5.施工流程图
- 施工流程:图集中会详细展示粘钢加固的施工流程,包括表面处理、胶水涂布、钢板粘贴、固定加压、固化等步骤。
 
例如,13G311混凝土结构加固构造图集详细描述了粘钢加固的施工流程,包括被粘混凝土和钢板表面处理、粘结剂配制、涂敷胶、粘贴、固定加压、固化等步骤.
6.材料和技术参数
- 材料参数:图集中会提供所用材料的技术参数,如钢板的材质、厚度、胶水的性能等。
 - 技术参数:图集中还会提供加固构件的力学性能参数,如承载力、挠度、裂缝等。
 
例如,13G311图集提供了碳纤维材料技术参数和混凝土与碳纤维材料技术参数.
示例图集
- 07SG111图集:分为1、2两册,分别详细展示了建筑结构加固施工图设计表示方法和深度图样.
 - 13G311图集:提供了混凝土结构加固构造的详细图集,包括粘钢加固的施工流程和技术参数.
 
结论
粘钢加固图集通过多种表示方式,如节点详图、平面注写、列表注写和施工流程图,详细展示了粘钢加固的方法和步骤。这些图集不仅为设计人员提供了参考,也为施工和监理人员提供了明确的指导。通过仔细阅读和理解这些图集,可以确保粘钢加固工程的顺利进行和高质量完成。




粘钢加固施工流程详解粘钢加固材料选择指南粘钢加固图集购买途径粘钢加固技术参数解读

