厂房建设作为固定资产,是企业扩大生产规模、提高生产效率的重要手段。它不仅能够为企业带来直接的经济效益,还能够提升企业的市场竞争力和品牌影响力。厂房建设也需要投入大量的资金和精力,因此企业在进行厂房建设时需要充分考虑市场需求、成本控制和风险管理等因素。
碳纤维加固设计规范标准
碳纤维加固作为一种先进的建筑加固技术,其设计和施工必须遵循一定的规范和标准,以确保加固效果和安全性。以下是关于碳纤维加固设计规范标准的相关信息。
国家标准规范
在中国,碳纤维加固的设计规范标准主要由国家相关部门制定和发布。早期的规范是《碳纤维片材加固混凝土结构技术规程》,编号为CECS146:2003。这一规范在2006年被最新的国家标准规范《混凝土结构加固设计规范》取代,新规范的编号为GB50367-2006。这意味着,自2006年起,碳纤维加固的设计应当遵循GB50367-2006这一国家标准。
设计要点
在进行碳纤维加固设计时,需要注意以下几个要点:
材料选择:碳纤维材料和胶粘材料的质量是保证加固效果的关键。所有进场材料必须符合质量标准,并具有出厂产品合格证。在材料的运输、储存、裁切和粘贴过程中,需要特别注意防止碳纤维受损,避免弯折、日晒和雨淋。胶粘材料应阴凉密闭储存。
施工工艺:施工过程中的每一道工序都需要由技术人员负责指导和监督。每完成一道工序后,需要提请技术员检查和认可,才能进行下道工序。这包括混凝土表面处理、涂刷底胶、配置找平胶并找平面层、粘贴碳纤维片材等步骤。
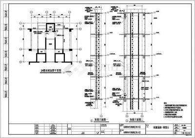
加固方式:在进行碳纤维加固时,纤维的方向应根据加固的受力方向来确定。例如,受弯加固时,纤维方向应与加固的受力方向一致;受剪加固、抗震加固时,纤维方向宜与构件轴向垂直。此外,混凝土强度等级也是一个重要的考虑因素,不同类型的加固对应不同的混凝土强度等级要求。
注意事项
在碳纤维加固设计和施工过程中,还需要注意以下事项:
表面处理:在粘贴碳纤维布之前,需要对混凝土表面进行处理,清除劣化层、浮浆、油污等杂质,并打磨平整。这一步骤对于保证碳纤维布与混凝土之间的粘结至关重要。
粘贴工艺:粘贴碳纤维布时,需要确保胶层呈凸起状,平均厚度不小于2mm。涂有粘结树脂的碳纤维布需要用橡胶滚筒顺纤维布方向均匀平稳压实,以保证密实无空洞。
防火保护:在加固后的碳纤维表面喷防火涂料进行保护,这是为了提高结构的耐火性能。
综上所述,碳纤维加固的设计和施工必须严格遵守国家颁布的标准规范,同时在材料选择、施工工艺、加固方式等方面进行细致的设计和严格的施工管理。只有这样,才能确保碳纤维加固的效果和建筑物的安全性。




碳纤维加固施工常见问题碳纤维材料质量检测方法碳纤维加固工程案例分析碳纤维加固与传统方法比较

