桁架搭建软件是一种专门设计用于创建、分析和优化桁架结构的工具。它提供了一套标准化的设计图纸,帮助用户快速准确地构建和调整桁架系统。这些图纸包括了各种类型的桁架结构,如三角形、四边形和五边形等,以及它们在不同载荷条件下的受力情况。通过使用这些设计图纸,用户可以更好地理解桁架系统的工作原理,并确保其满足所需的承载能力和稳定性要求。桁架搭建软件还提供了一些附加功能,如材料选择、计算方法和优化建议,以帮助用户更有效地设计和建造桁架结构。
桁架标准图集概述
桁架标准图集是一系列标准化的设计图纸,它们包含了桁架结构的各种类型、尺寸、节点详图以及施工要求等信息。这些图集通常由专业的设计机构或行业组织编制,旨在为工程师、设计师和施工单位提供参考,以便他们在设计和建造桁架结构时能够遵循统一的标准和规范。
桁架图集的内容
桁架图集通常包括以下几个方面的内容:
- 目录和说明:这部分提供了图集的整体概览和使用指南,包括图集的适用范围、设计依据、材料要求等基本信息。
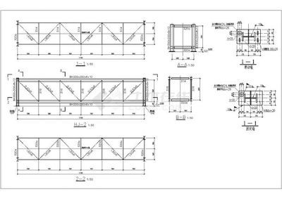
 - 桁架详图:详细展示了桁架的结构布局、尺寸参数、杆件连接方式等,是设计和制造桁架的关键依据。
 - 节点详图:重点描述了桁架各个节点的构造细节,包括连接件的选择、焊接或螺栓连接的要求等。
 - 支座详图:提供了桁架支座的设计方案,包括支座的形式、尺寸、与基础的连接方式等。
 - 材料表:列出了桁架结构所需的各种材料及其规格,方便施工单位进行材料采购和管理。
 
桁架图集的应用
桁架图集在工程实践中有着广泛的应用,它们可以帮助设计师快速获取桁架结构的设计方案,减少重复劳动,提高设计效率。同时,施工单位也可以根据图集中的详图进行精确的加工和安装,确保工程质量。此外,图集中的标准做法还有助于保证结构的安全性和可靠性,符合相关的建筑规范和标准。
如何获取桁架图集
桁架图集可以通过多种途径获取。一些专业的建筑网站和论坛会提供图集的下载服务,例如“土木在线”就提供了丰富的钢结构桁架图集资源。此外,一些设计院或研究机构也会出版自己的图集,这些图集可能需要购买或订阅才能获得。在选择图集时,应确保其来源可靠,内容符合最新的行业标准和技术要求。
综上所述,桁架标准图集是桁架设计和施工的重要参考资料,它们提供了标准化的设计方案和详细的构造细节,有助于提高工程质量和设计效率。通过合理的使用图集,设计师和施工单位可以更加便捷地完成桁架结构的设计和建造工作。




桁架图集的最新行业标准桁架结构设计的创新方法桁架节点构造的优化技巧钢结构桁架图集资源下载

