钢结构厂房设计费清单通常包括以下内容:1) 初步设计费,根据项目规模和复杂程度,初步设计费用在3000元至5000元之间;2) 详细设计费,根据项目规模和复杂程度,详细设计费用在8000元至15000元之间;3)施工图预算编制费,根据项目规模和复杂程度,施工图预算编制费用在6000元至12000元之间;4) 施工组织设计费,一般按照工程量的一定比例计算,费用在1000元至3000元之间。以上价格仅供参考,实际费用可能因地区、公司等因素而有所不同。
普通钢结构厂房设计图纸概述
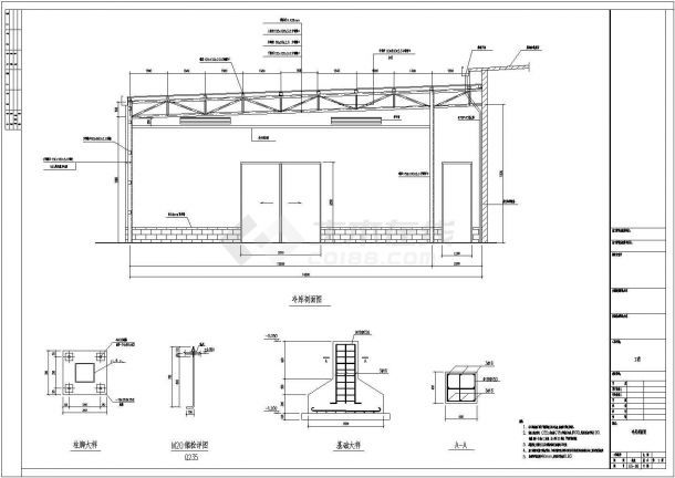
普通钢结构厂房设计图纸通常包括多个方面的内容,以确保厂房的设计既符合力学原理,又便于施工,并且在经济性上达到最优。以下是根据搜索结果整理的普通钢结构厂房设计图纸的主要组成部分和设计原则:
| 设计图纸部分 | 描述 | 
|---|---|
| 平面图 | 展示建筑物的尺寸、布置、结构等信息,是设计中最基础的部分。 | 
| 立面图 | 展示建筑物的立面外观。 | 
| 剖面图 | 展示建筑物的内部结构。 | 
设计原则
| 原则 | 描述 | 
|---|---|
| 结构合理性 | 符合力学原理,保证结构的稳定性和安全性,考虑荷载、风荷载、地震荷载等因素。 | 
| 施工可行性 | 考虑到施工的可行性和效率,合理安排构件的制作和安装顺序。 | 
| 经济性 | 在满足结构要求的前提下,尽量减少材料的使用量和工程的成本。 | 
普通钢结构厂房设计图纸的获取途径
普通钢结构厂房设计图纸可以通过多种途径获取。以下是一些常见的来源:
| 来源 | 描述 | 
|---|---|
| co188.com | 提供了大量钢结构厂房设计图纸的下载,包括CAD格式的全套图纸。 | 
| trueland.net | 提供了钢结构厂房设计图纸的基本要素和设计原则的解析。 | 
以上信息提供了普通钢结构厂房设计图纸的基本概念、组成部分、设计原则以及获取途径。在实际应用中,设计师应根据具体项目的需求和条件,结合上述信息进行详细的设计工作。




 钢结构厂房设计软件推荐钢结构厂房造价预算方法钢结构厂房施工流程介绍钢结构厂房节能设计要点
钢结构厂房设计软件推荐钢结构厂房造价预算方法钢结构厂房施工流程介绍钢结构厂房节能设计要点




