钢结构住宅技术规程是一套详细的指导文件,它为钢结构住房的设计、施工和验收提供了规范。该规程包括了钢结构住宅设计图的编制要求、结构体系选择、构件尺寸确定、连接与支撑方法、材料选用标准、建筑布局与空间利用、防火与抗震设计等重要内容。这些规定旨在确保钢结构住宅的结构安全、经济合理以及符合居住舒适性和美观性的要求,从而促进钢结构住房的健康发展。
钢结构住房设计图
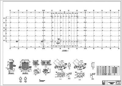
钢结构住房设计图是指用于指导钢结构住房建设的详细图纸,这些图纸包含了房屋的结构布局、构件尺寸、连接方式等关键信息。以下是关于钢结构住房设计图的一些详细信息。
设计图的内容
钢结构住房设计图通常包括多种类型的图纸,如平面图、立面图、剖面图、节点详图等。这些图纸详细展示了房屋的各个组成部分,包括屋顶、墙面、楼层、楼梯等。例如,某钢结构住宅设计图就包含了屋顶平面图、一层平面图、二层平面图、南立面等内容。
设计图的获取途径
钢结构住房设计图可以通过多种途径获取。一些专业的网站提供了大量的设计图供设计师和建造者下载参考。例如,土木在线网站就提供了丰富的钢结构房屋设计图资源,包括单层厂房钢架轻型房屋钢结构设计图、二层钢结构房屋建筑方案设计图等。
设计图的标准和规范
在设计钢结构住房时,必须遵守相关的国家标准和规范。例如,《钢结构工程施工质量验收规范》(GB50205-2001)就是钢结构设计和施工必须遵循的重要标准之一。此外,设计图还应考虑抗震设防烈度、建筑物的安全等级等因素。
设计图的注意事项
在使用钢结构住房设计图时,需要注意图纸的比例尺、标注的单位、材料的要求等内容。例如,某24m跨门式钢架轻型房屋钢结构厂房施工图中,标高以米为单位,尺寸以毫米为单位。
综上所述,钢结构住房设计图是指导钢结构住房建设的重要文件,它包含了房屋的结构布局、构件尺寸、连接方式等关键信息。通过专业的网站,可以获取到丰富的钢结构房屋设计图资源。在使用设计图时,需要遵守相关的国家标准和规范,并注意图纸上的各种标注和要求。




钢结构住房设计图的制作流程钢结构住房设计图的审核要点钢结构住房设计图的版权问题钢结构住房设计图的软件工具

