钢结构电梯框架施工方案要点包括:根据设计图纸和相关规范要求进行现场勘察,确保基础牢固、位置准确。选择适当的材料和工艺,采用高强度钢材和焊接技术以确保结构的稳定性和安全性。按照施工顺序和方法进行安装,包括立柱、梁、平台等部件的制作和安装。对整个钢结构进行质量检查和验收,确保符合设计和规范要求。
钢结构电梯框架施工方案
钢结构电梯框架的施工是一个复杂的过程,涉及到多个环节和步骤。以下是根据提供的搜索结果整理的施工方案要点:
1. 施工准备
技术准备
首先,需要审查设计文件是否齐全合理,符合国家标准。这包括设计、校对、审核人员的签字,设计院的盖章,建设部门的存档,监理单位的核对,以及施工单位和建设单位的会审签字。此外,还需要根据工厂和工地现场的实际起重能力和运输条件,核对施工图中钢结构的分段是否满足要求;工厂和工地的工艺条件是否满足设计要求。
材料的采购、存放
钢结构主材和附材全部采用Q235号钢制作,钢材采购的数量和品种应和订货合同相符,钢材的出厂质量证明书数据必须和钢材打印的记号一致。涂料、稀释剂等产品技术性能,颜色均应符合设计要求。钢构件应按结构的安装顺序分单元成套供应。钢构件存放场地应平整坚实,无积水。底层垫枕应有足够支承面,相同型号的钢构件叠放时,各层构件的支点应在同一垂直线上,并应防止构件被压坏和变形。焊接材料和螺栓涂料应建立专门仓库,库内应干燥、通风良好。
材料的验收
钢结构使用的钢材、焊接材料、涂装材料和紧固件等应具有质量证明书,必须符合设计要求和现行标准的规定。并向甲方和监理提供检验报告。钢材表面不许有结疤、裂纹、折叠和分层等缺陷;钢材端边或断口处不应有分层、夹渣。有上述缺陷的应另行堆放,以便研究处理。严禁使用药皮脱落或焊芯生锈的焊条、受潮结块或已熔烧过的焊剂以及生锈的焊丝。
2. 钢结构构件制作、组装、检验
熟悉施工图,并认真阅读技术要求及设计说明,并逐个核对图纸之间的尺寸和方向等。直接在板料和型钢上号料是,应检查号料尺寸是否正确。准备好做样板、样杆的材料,一般可采用薄钢板和小扁钢。号料前必须了解原材料的材质及规格,检查原材料的质量。并根据先大后小的原则依次号料。钢材如有较大的弯曲、凹凸不平时,应先进行矫正。尽量使相等宽度和长度的零件一起号料,需要拼接的同一种构件必须一起号料。样板、样杆上应用油漆写明加工号、构件编号、规格,同时标注上孔直径、工作线、弯曲线等各种加工符号。放样和号料应预留收缩量及切割、铣刨需要的加工余量,尽可能节约材料。主要受力构件和需要弯曲的构件,在号料时应按照工艺规定的方向取料,弯曲的外侧不应有样冲点和伤痕缺陷。
3. 钢结构焊接、检验(手工电弧焊)
在构件制作前,工厂应按照施工图纸的要求以及《建筑钢结构焊接规程》的要求进行焊接工艺评定试验。
4. 安装施工
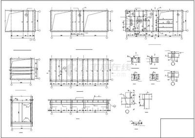
钢框架立柱安装
安装调整螺母并调整其标高→钢柱吊装就位→复核柱脚板顶面标高→调整柱垂直度→固定调整螺母并拧紧→柱脚板灌浆。主弦杆(立柱)安装时,先在4个预埋螺栓上旋入调整螺母并调整其顶部标高至柱脚板下部标高,将钢柱吊至调整螺母上,再复核并调整柱脚板顶标高,使用平尺、磁力线坠微调不同方向上的调整螺母,以调整钢立柱垂直度,调整完成后将调整螺母向柱脚板方向拧紧。
钢框架横腹杆安装
在横腹杆两端预先焊接连接钢板,将连接板与立杆螺栓孔对准后穿入M16螺栓,拧紧螺母并锁紧螺母。横腹杆与横腹杆间、横腹杆与立柱间连接均采用M16螺栓。
钢框架斜腹杆及斜拉杆安装
斜腹杆与横腹杆侧面连接板采用M16螺栓连接。拉杆一端与主弦杆连接座在工厂已焊接于钢框架立柱上;另一端通过螺栓与预埋在混凝土基础上的斜拉杆连接座连接。斜拉杆可通过旋转支撑管调节到合适的长度。
施工电梯与附着杆安装
施工电梯安装与常规施工电梯安装方法相同。施工电梯的导轨架接高时,按国家标准规定若超过9m需安装附墙架,但为保证导轨架整体稳定和垂直度,在标高4.633m,10.627m,15.984m处,放3道附墙架。以导轨架上的螺栓孔定位,采用长90mm的M16螺栓将附墙架的前小架固定在导轨架上,两端后附墙脚长255mmM24螺栓直接安装在钢框架横腹杆预留洞上,锁紧螺母。调整导轨架与附着杆之间的距离,适当移动附着杆以调整导轨架的垂直度。
以上就是钢结构电梯框架施工方案的主要内容。需要注意的是,具体的施工方案可能会因工程的具体情况而有所不同,因此在实际操作中应根据实际情况进行调整。




钢结构电梯框架施工安全措施钢结构电梯框架施工质量控制钢结构电梯框架施工进度管理钢结构电梯框架施工成本预算


